The building trade in India has vastly remained a fragmented industry and architecture – a marginal profession. Today, an isolated practice, likely to push the profession towards irrelevance, needs a rethinking to be more inclusive, diverse and delimiting. The projects of Chennai-based MOAD reflect on an alternate approach – one where collaborative work enriches the design process.

‘Collaboration’ in architecture maybe perceived as a potential testing lab for creative and critical ideas, whilst at the same time helping to nurture fundamental competences. Sometimes, a project may witness an innovation that could prove efficient and benefit the industry at large through this cross-pollinating process. With further blurring of roles and responsibilities, the architect may assume the position of a process facilitator – a co-creator. Encouraging an individual to develop a specific and considered response to social, physical, and environmental contexts and concerns; the two featured projects- Book Building and Play Room designed by Chennai-based Madras Office for Architects & Designers (MOAD); create a discourse on the merit of the process of collaboration and therefore, a change in the professional role of the architect.
I think we gave Mahesh a fairly impossible brief to begin with. What Mahesh has captured for us is the process- the way we work has been translated into a building”, recalls Gita Wolf, Lead Designer & Co-Founder, Tara Books.
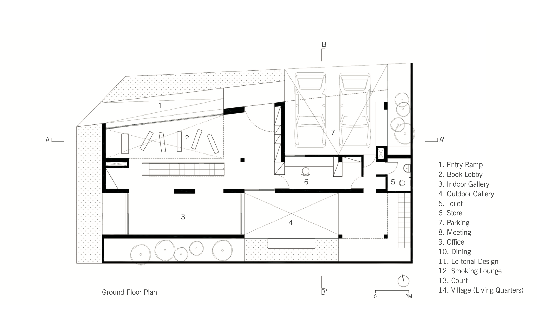
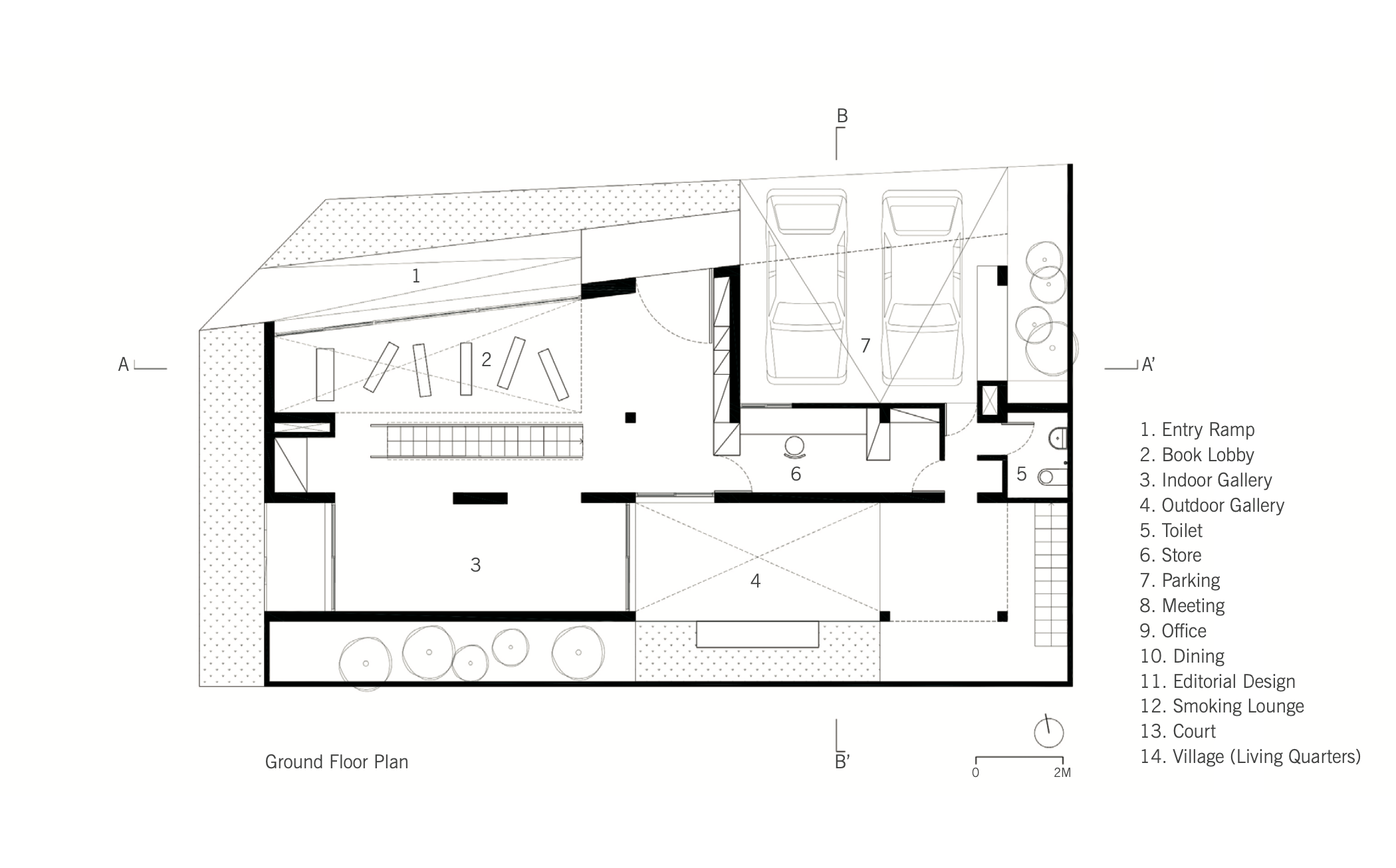
The Book Building sits on a corner plot with all the designed infrastructure along with space for future expansion packed within the volume. The clients imagined the building as a contemporary space that would represent how they design books – keeping certain traditions alive or soliciting inspiration for a recreated identity. As a graphic designer, Gita Wolf adds, “One of the first conversations we had was about visualisation. I can think in terms of graphic design. If somebody comes to me with an idea about a book, I can visualise almost exactly how it could turn out. But I do not have that thing with space. We enjoy it when our collaborators take us to places we have never seen before.”
Architecture has been intentionally kept light in the making; it takes a backseat and lets the user and process take the foreground. By not designing individual spaces for a specific function, one is encouraged to move organically through the architecture. If the design of the walls and spaces infuse a certain sense of openness, art adds to the whole building with a creative energy befitting a studio. A distinct assemblage and compilation of a façade with mild steel grills was a challenge the architect took up in an attempt to explore both – a traditional architectural vocabulary that could reflect the uniqueness in the artistic identity of Tara Books and the accessible urban skill of fabrication.
It is quite interesting to realise that not many people who visit us know that an architect was involved in the design of this building. They don’t know how to place it. It is a place full of light and air and creativity, and people are really happy working here. That is fundamental.”, Gita Wolf mentions on reactions from visitors to the Book Building.
When architects work with individuals from specialised areas of expertise, the design process can be exhilarating. Describing this association for the Play Room project Mahesh recalls how, “It helped a great deal when all the collaborators performing different roles were architects. Their knowledge of 3-dimensionality of space and its response to the end user is evident in the way they contributed to the project.”
Tucked away in a residential neighbourhood, Play Room is a child activity centre, also known as the iSpark Holistic Happiness & Fitness Studio for Children, situated in the heart of Chennai. The original space was once a traditional courtyard house that had degenerated owing to several ad hoc changes. The primary challenge was two-fold: reimagining an intuitive place for kids and establishing a narrative in a space that did not exist before. When MOAD began work on retracing an existing, hidden layout on-site; collaboration with Bangalore-based Lighting Designer Anusha Muthusubramanian from Lighting Spaces and Artist Marcos Guardiola Martín happened incidentally.
On brainstorming with MOAD, Anusha mentions, “It involved not just the virtual simulation but in-reality experiencing and studying the raw volume and transitions at site. During the colour coordination and painting process, Lighting Spaces came on board so that the resultant effect of application of colour to the volume (i.e., fluorescence, blur, hue, saturation) could be understood before deciding on the technique of lighting.”
In the face of an increased pace of project execution, architects are often tempted (and rightly so), to slow down in order to make holistically informed decisions. Creatively engaging with other professionals remains a less-explored territory, but one that can potentially deepen the engagement. Patronage in collaboration is no more than a mere transaction between the architect and collaborator- it is a relationship that is made of mutually enriching dialogues involving knowledge-sharing and innovation and extends well beyond the frameworks of the project. While this fundamental change of perception in practice is still in its infancy, there is much that could be learnt from contemporary practices that foreground this process.
NOTE ON COLLABORATION
By Mahesh Radhakrishnan
As architects, we are trained to be an auteur. This is how our attitude has been nurtured, which is simultaneously frustrating and endearing. The current complexities of the profession, and challenges of various roles we perform test this attitude in many ways. Collaboration happens when there is an intuitive understanding how each of our roles will influence the other with a collective vision. It is not a relay but a ‘Jugalbandi’. While the former relies on co-operation, latter is collaboration ⊗

THE MADRAS OFFICE FOR ARCHITECTS AND DESIGNERS (MOAD) is a multidisciplinary design practice with expertise ranging from large-scale urban design to small-scale furniture design. Their design process focuses on craft and local skills combined with materials and technology, leading to a design specific to a context.
Anusha Muthusubramanian has an undergraduate degree in Architecture from NIT Trichy and a Masters in Architectural Lighting Design from Hochshule Wismar, Germany. She set-up her own practice ‘LIGHTING SPACES’ in 2015. A structured design approach and an intuitive problem-solving ability guide her process.
‘TARA BOOKS’ is a collective of writers, artists and designers, based out of Chennai, Tamil Nadu. They publish illustrated and handmade books for children and adults. Known for their richly illustrated books, Tara Books is a unique merger between design, art and the craft of storytelling.
MAGUMA is the pseudonym for the Spanish artist Marcos Guardiola Martín, who is based in Madrid and works for a growing number of publications, including dailies, weeklies and political journals across Europe and Latin America. Trained as an architect and inspired by the style of old adult Spanish comics, Maguma has developed a style that is bright, tactile and surreal — and which combines the qualities of pastel and gouache with the precision of screen-printed drawings.
























